MAISON MODULAIRE EN CLT
Kronos
-
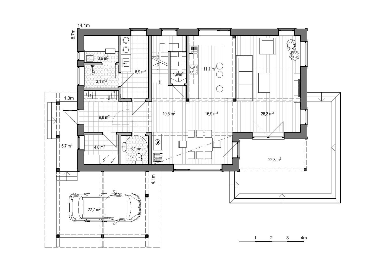
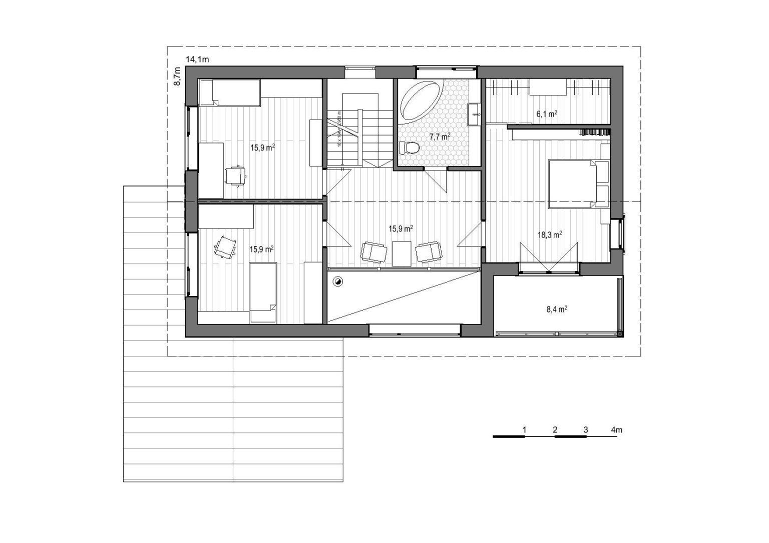
Surface totale
236.6 m2 -
Surface utile
177.0 m2 -
Terrasses et/ou balcons
36.9 m2 -
Étages
2
Plus d'informations












