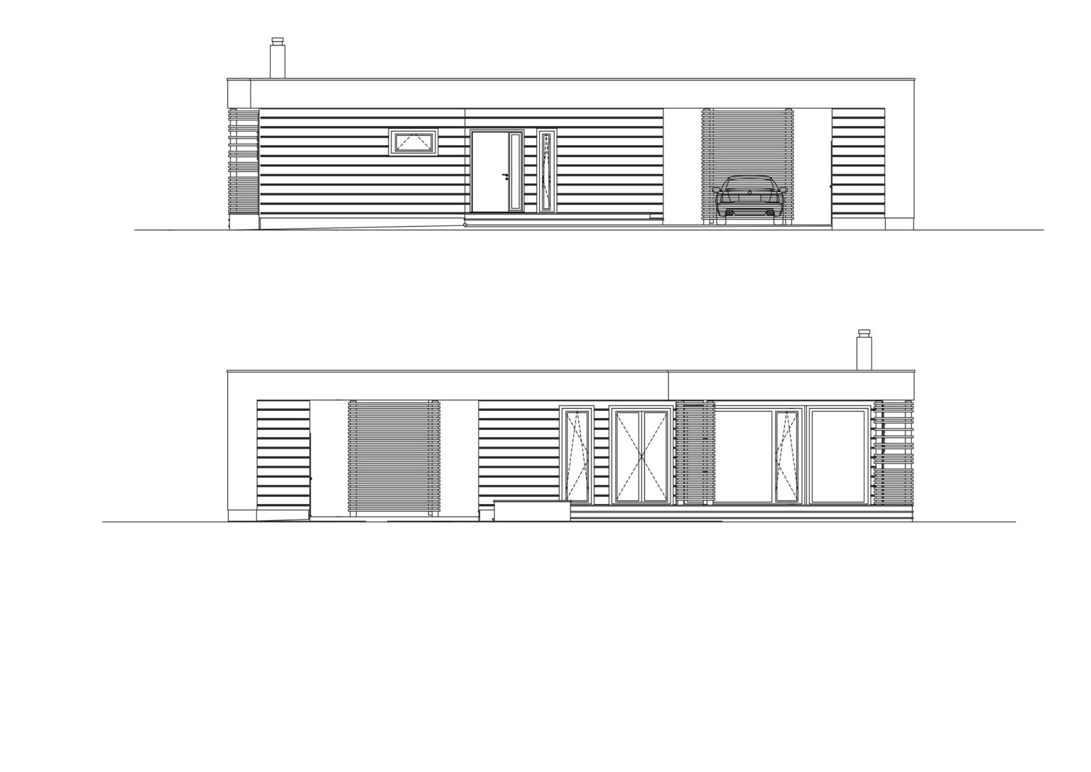
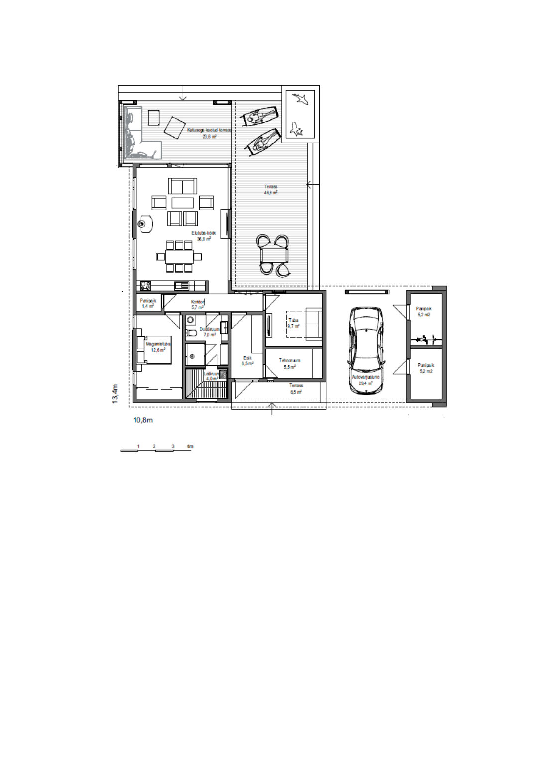
• Surface utile

    99.6 m2
  • Terrasses et/ou balcons

    76.9 m2
  • Étages

    1

Plus d'informations

+372 622 5845