MAISON EN RONDINS
Belenus
-
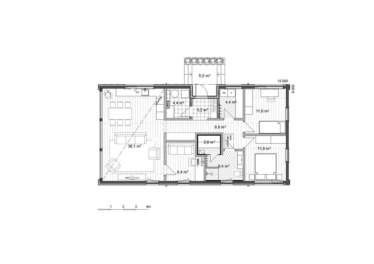
Surface totale
103.9 m2 -
Surface utile
98.9 m2 -
Terrasses et/ou balcons
5.0 m2 -
Étages
1
Plus d'informations
Surface totale
103.9 m2Surface utile
98.9 m2Terrasses et/ou balcons
5.0 m2Étages
1Plus d'informations