MAISON EN RONDINS
Uranus
-
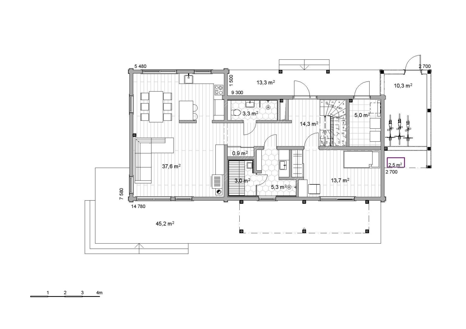
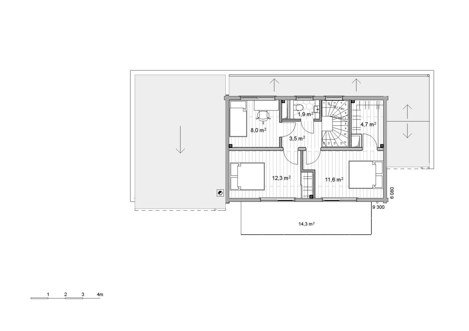
Surface totale
208.2 m2 -
Surface utile
135.4 m2 -
Terrasses et/ou balcons
72.8 m2 -
Étages
2
Plus d'informations
Surface totale
208.2 m2Surface utile
135.4 m2Terrasses et/ou balcons
72.8 m2Étages
2Plus d'informations