MAISON EN RONDINS
Juno
-
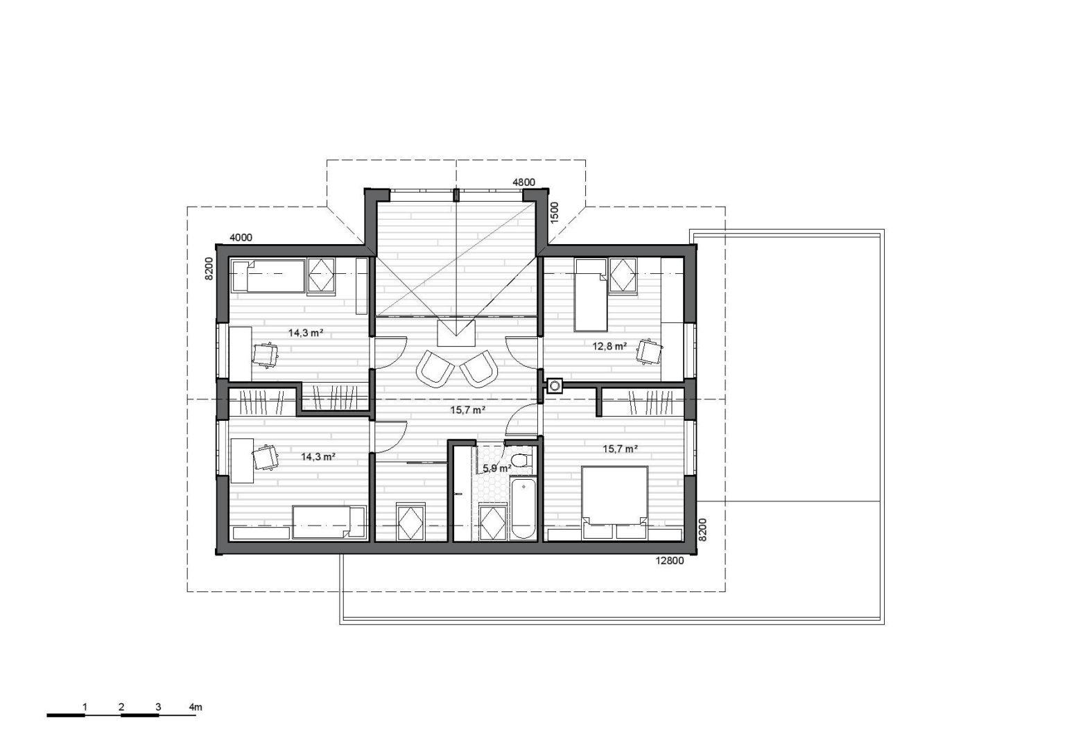
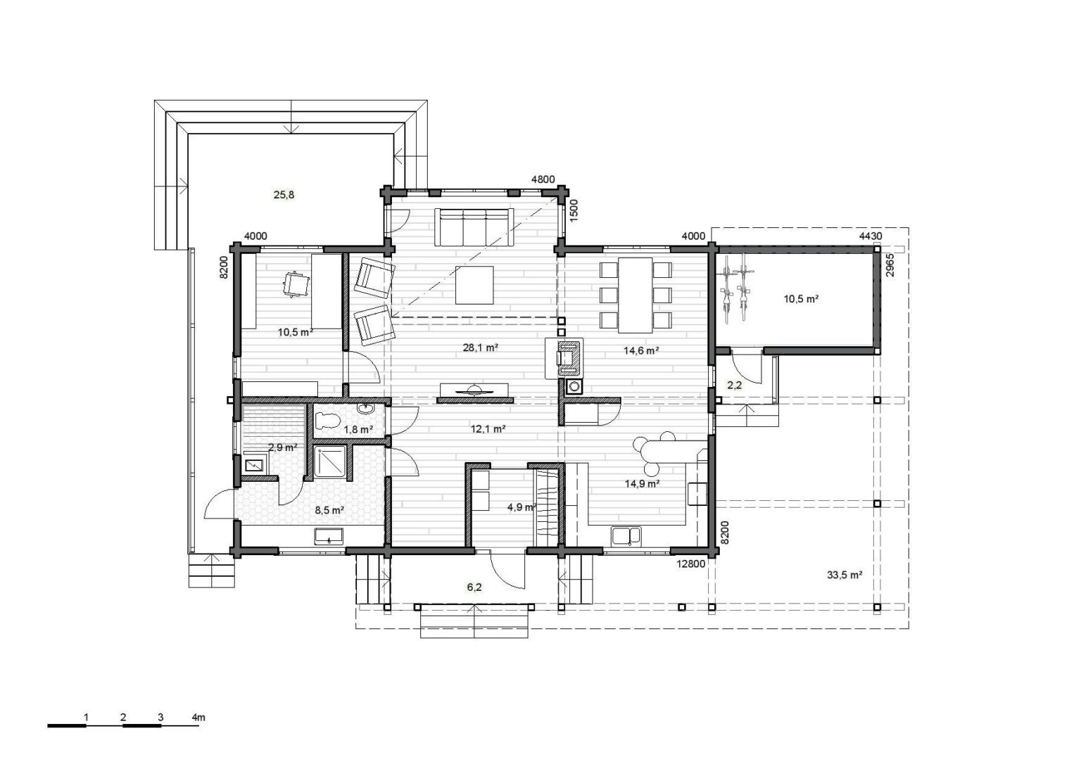
Surface totale
255.2 m2 -
Surface utile
187.5 m2 -
Terrasses et/ou balcons
34.2 m2 -
Étages
2
Plus d'informations
Surface totale
255.2 m2Surface utile
187.5 m2Terrasses et/ou balcons
34.2 m2Étages
2Plus d'informations