MAISON MODULAIRE EN CLT
Colleda
-
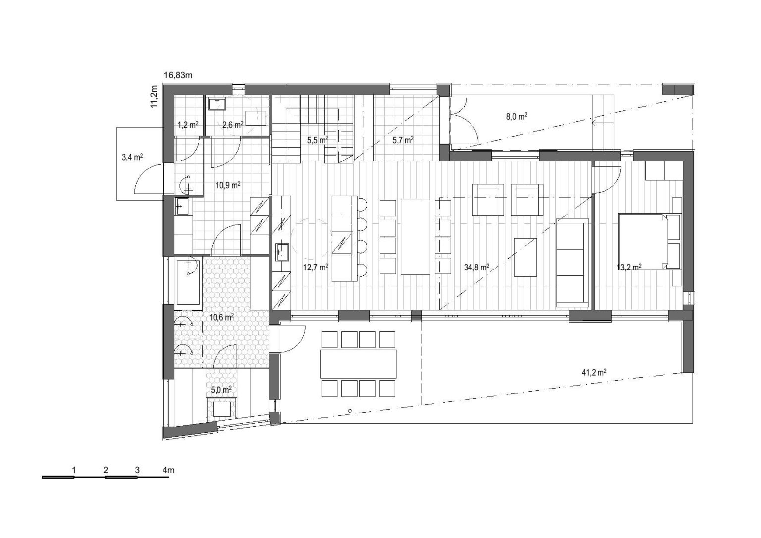
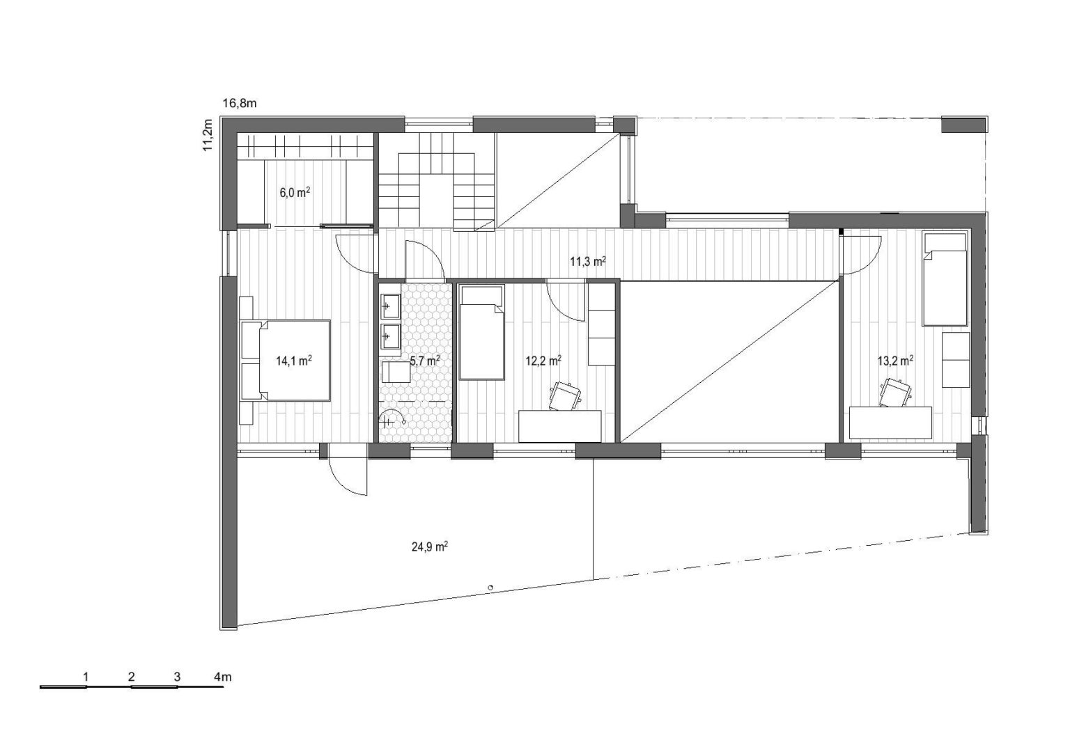
Surface totale
242.2 m2 -
Surface utile
164.7 m2 -
Terrasses et/ou balcons
77.5 m2 -
Étages
2
Plus d'informations











