MAISON MODULAIRE EN CLT
Hetena
-
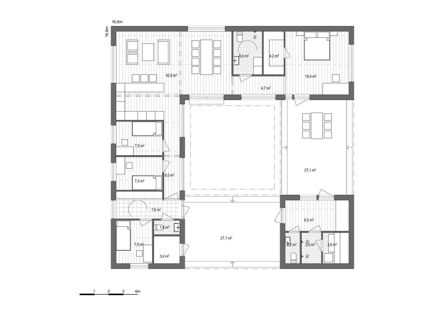
Surface totale
191.2 m2 -
Surface utile
137.0 m2 -
Terrasses et/ou balcons
54.2 m2 -
Étages
1
Plus d'informations





























