-
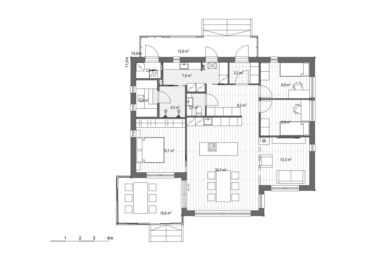
Surface totale
136.3 m2 -
Surface utile
108.1 m2 -
Terrasses et/ou balcons
28.2 m2 -
Étages
1
Plus d'informations
Surface totale
136.3 m2Surface utile
108.1 m2Terrasses et/ou balcons
28.2 m2Étages
1Plus d'informations