-
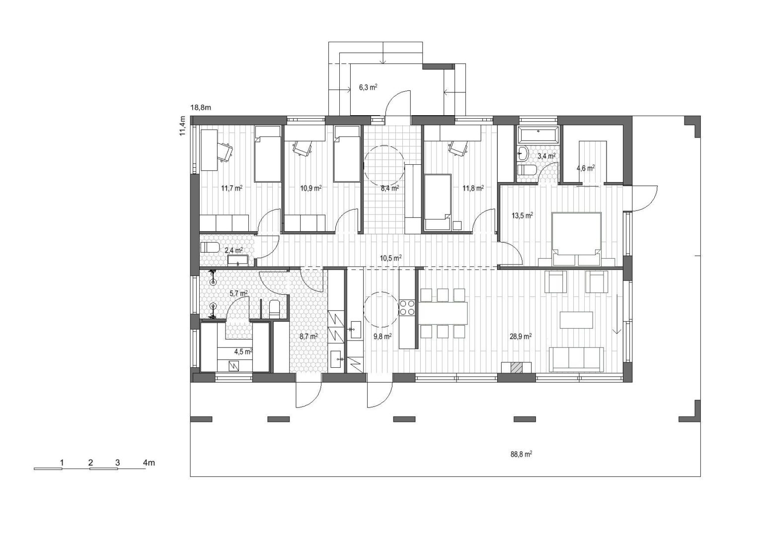
Surface totale
229.9 m2 -
Surface utile
134.8 m2 -
Terrasses et/ou balcons
95.1 m2 -
Étages
1
Plus d'informations
Surface totale
229.9 m2Surface utile
134.8 m2Terrasses et/ou balcons
95.1 m2Étages
1Plus d'informations