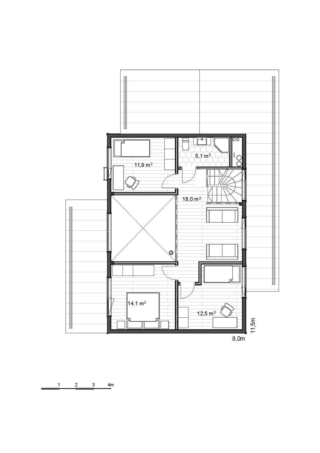
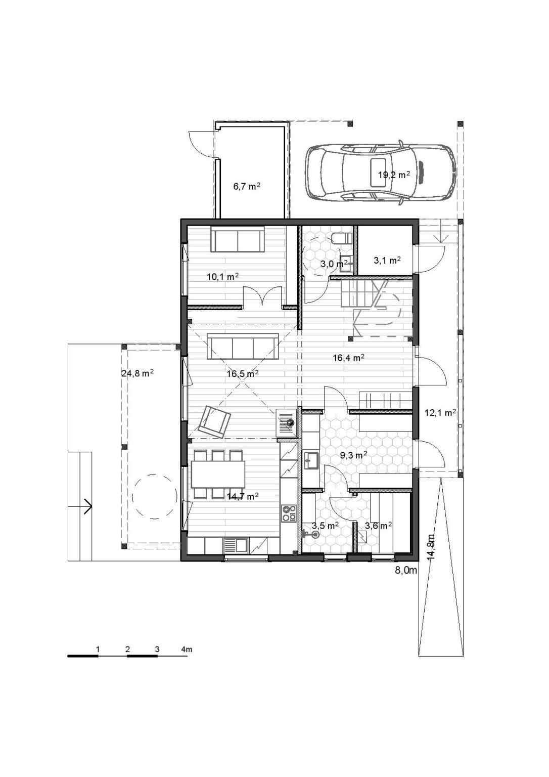
• Surface totale

    204.6 m2
  • Surface utile

    148.5 m2
  • Terrasses et/ou balcons

    36.9 m2
  • Étages

    2

Plus d'informations

+372 622 5845