MAISON MODULAIRE EN CLT
Rheda
-
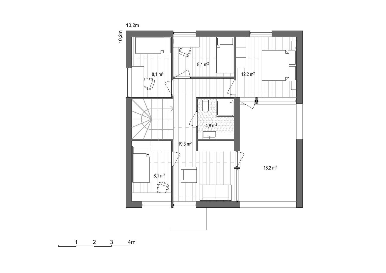
Surface totale
167.7 m2 -
Surface utile
134.4 m2 -
Terrasses et/ou balcons
33.3 m2 -
Étages
2
Plus d'informations








