MAISON EN RONDINS
Ebore
-
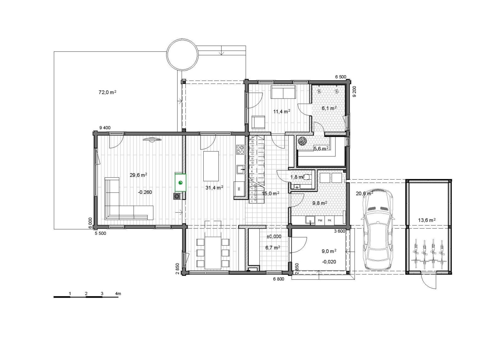
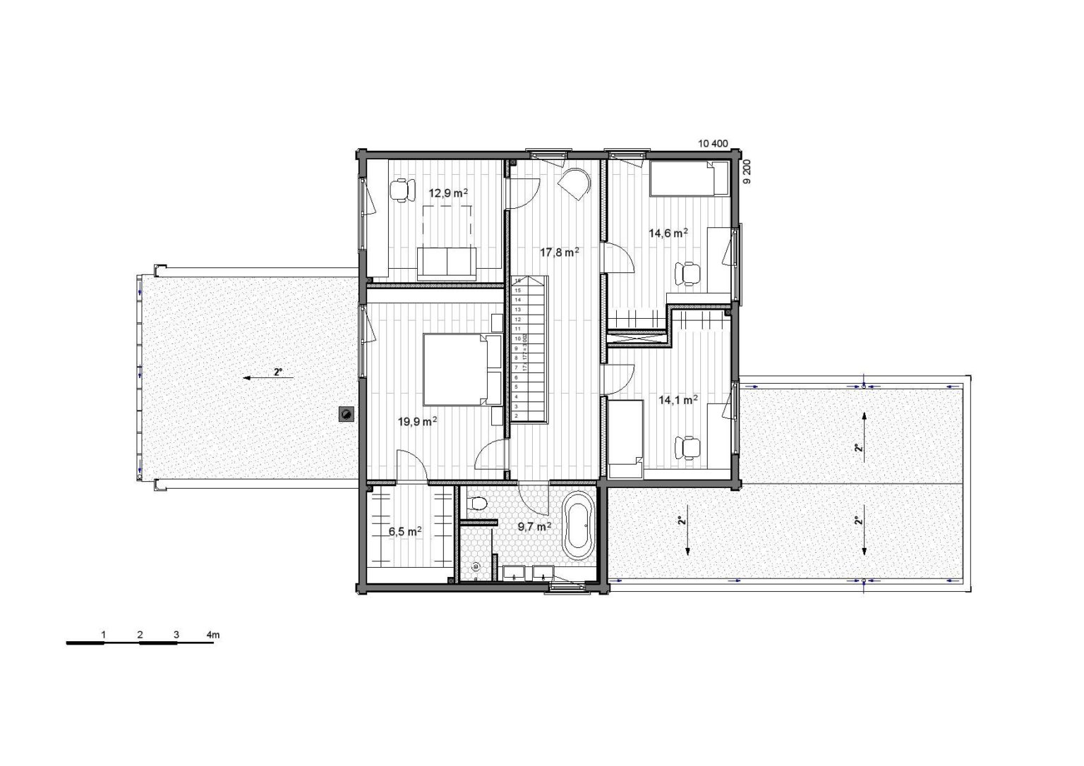
Surface totale
328.1 m2 -
Surface utile
226.5 m2 -
Terrasses et/ou balcons
81 m2 -
Étages
2
Plus d'informations
Surface totale
328.1 m2Surface utile
226.5 m2Terrasses et/ou balcons
81 m2Étages
2Plus d'informations