MAISON EN RONDINS
Capella
-
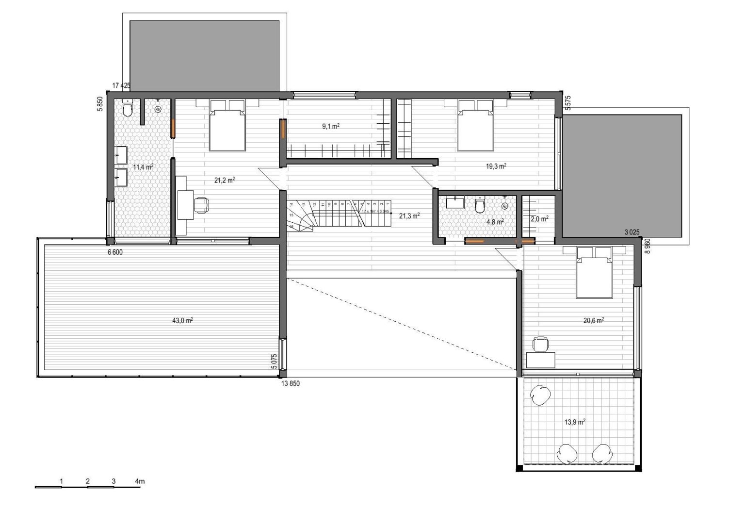
Surface totale
454.5 m2 -
Surface utile
270.4 m2 -
Terrasses et/ou balcons
184.1 m2 -
Étages
2
Plus d'informations
Surface totale
454.5 m2Surface utile
270.4 m2Terrasses et/ou balcons
184.1 m2Étages
2Plus d'informations