MAISON MODULAIRE EN CLT
Beyla
-
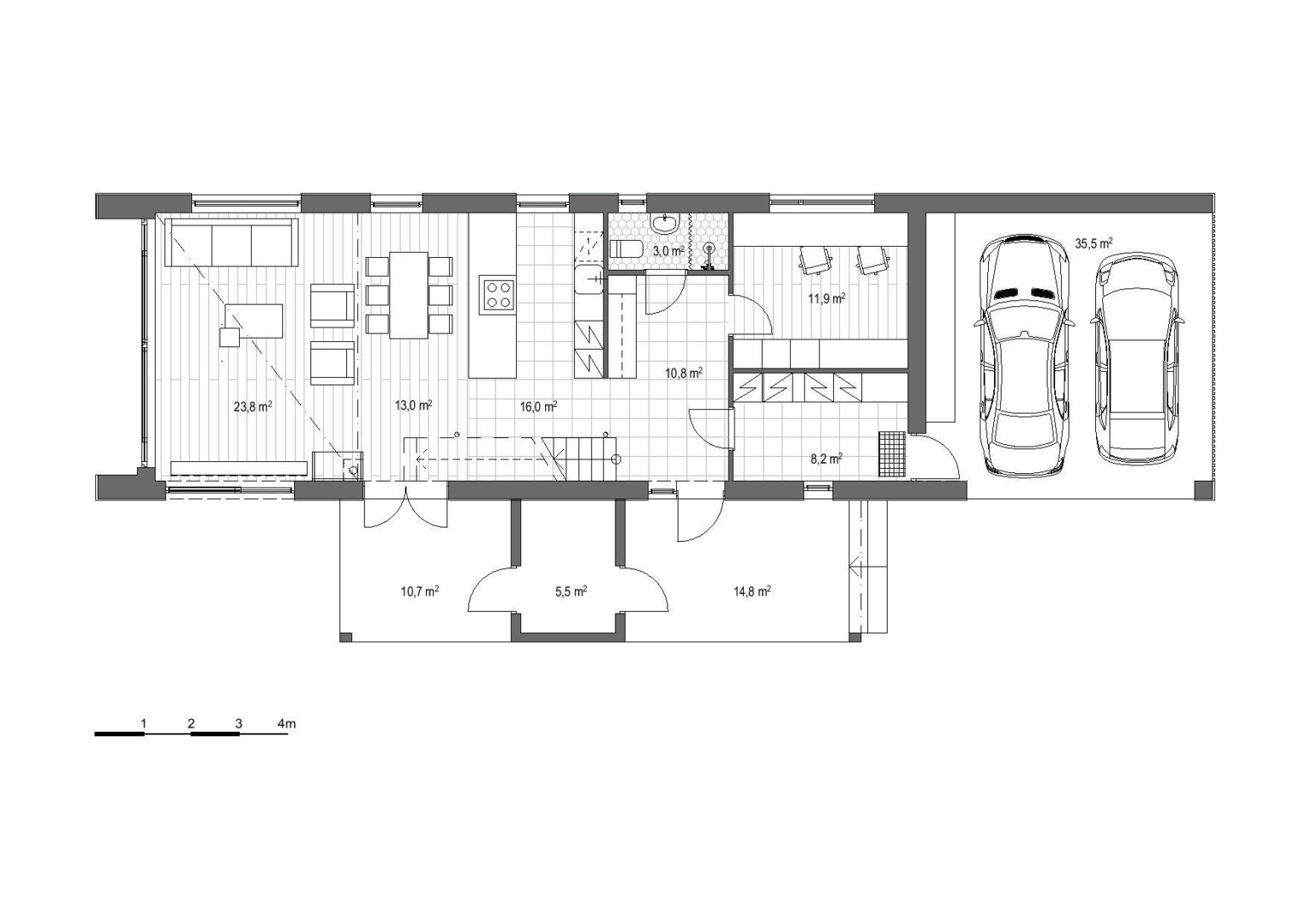
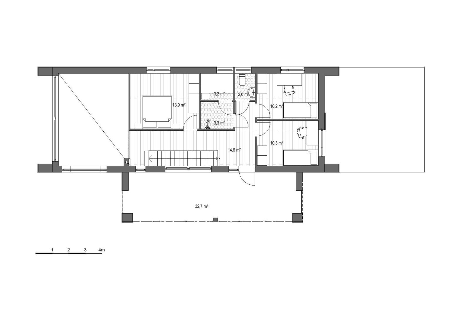
Surface totale
243.4 m2 -
Surface utile
149.7 m2 -
Terrasses et/ou balcons
58.2 m2 -
Étages
2
Plus d'informations











