MAISON EN RONDINS
Cleena
-
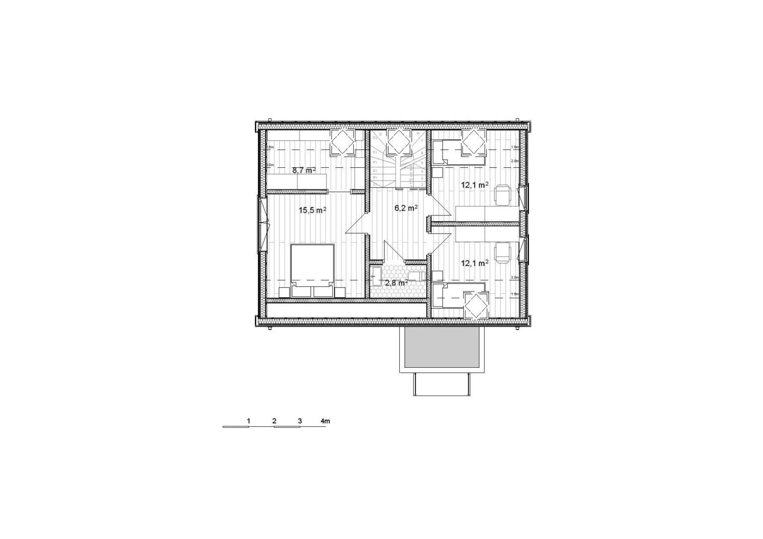
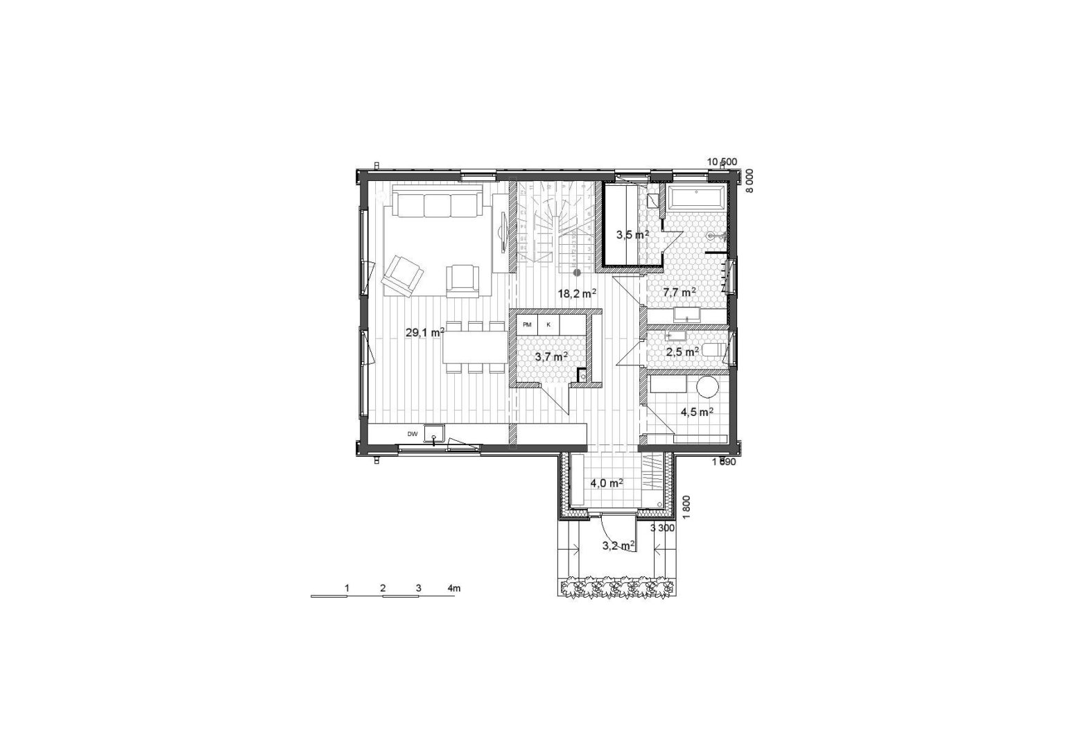
Surface totale
133.8 m2 -
Surface utile
130.6 m2 -
Terrasses et/ou balcons
3.2 m2 -
Étages
2
Plus d'informations
Surface totale
133.8 m2Surface utile
130.6 m2Terrasses et/ou balcons
3.2 m2Étages
2Plus d'informations