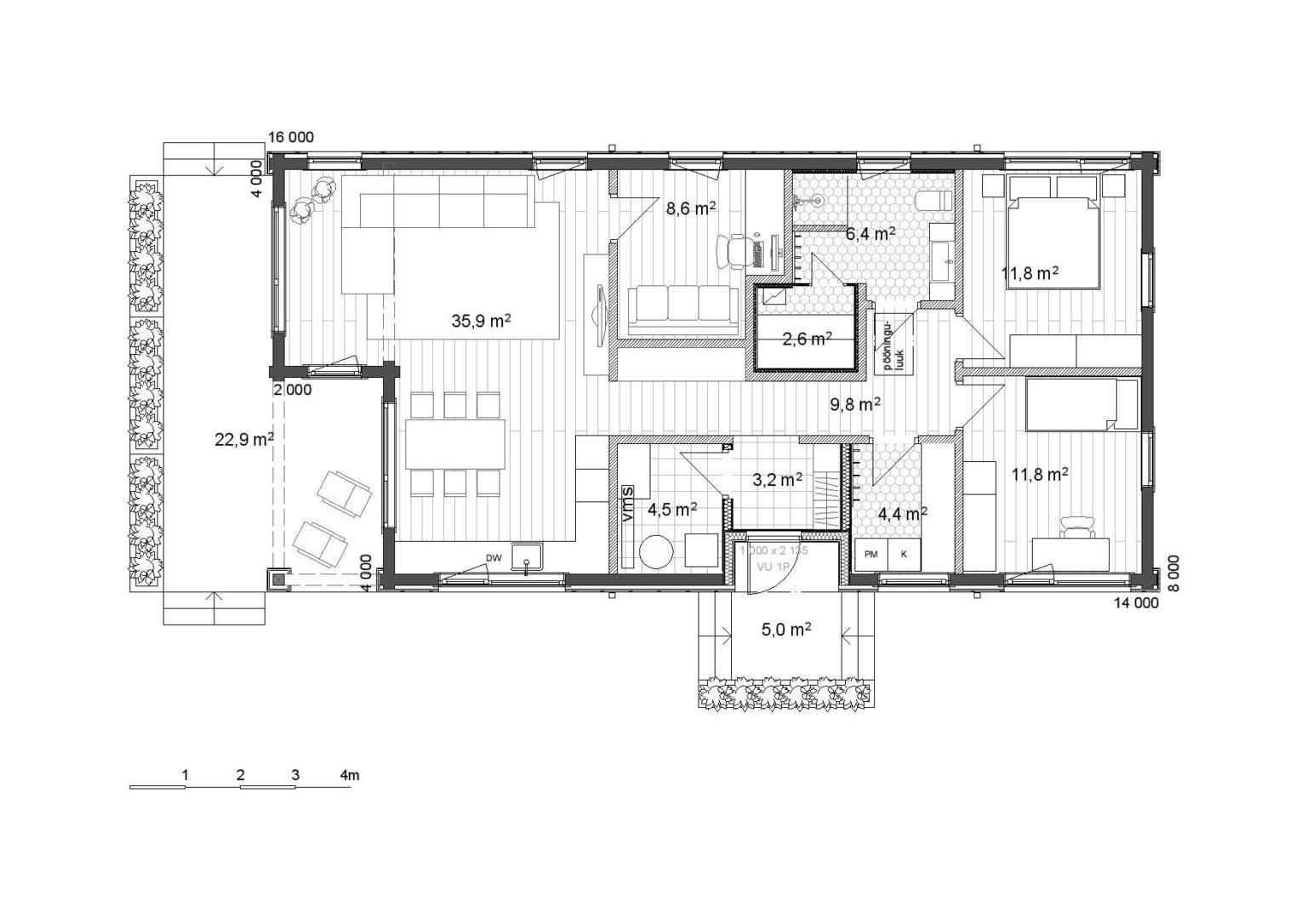
• Surface totale

    126.9 m2
  • Surface utile

    99.0 m2
  • Terrasses et/ou balcons

    27.9 m2
  • Étages

    1

Plus d'informations

+372 622 5845