MAISON MODULAIRE EN CLT
Clota
-
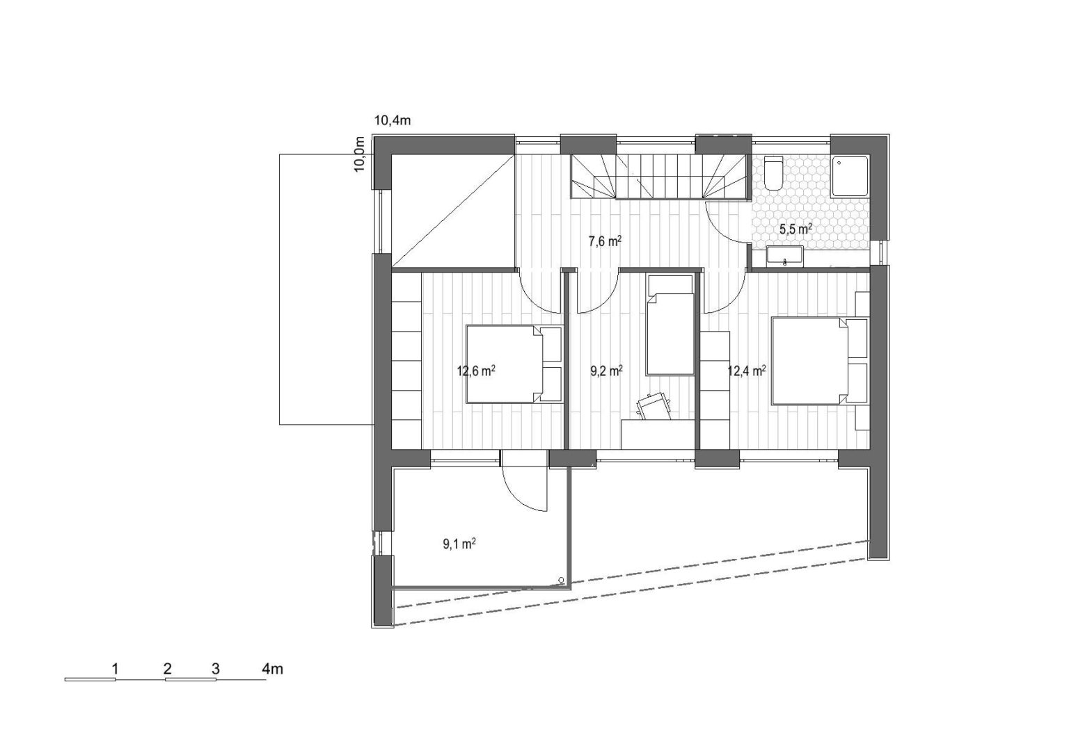
Surface totale
141.5 m2 -
Surface utile
104.1 m2 -
Terrasses et/ou balcons
37.4 m2 -
Étages
2
Plus d'informations











